exterior rendering
exterior rendering
concept elevation
concept elevation
plan
plan
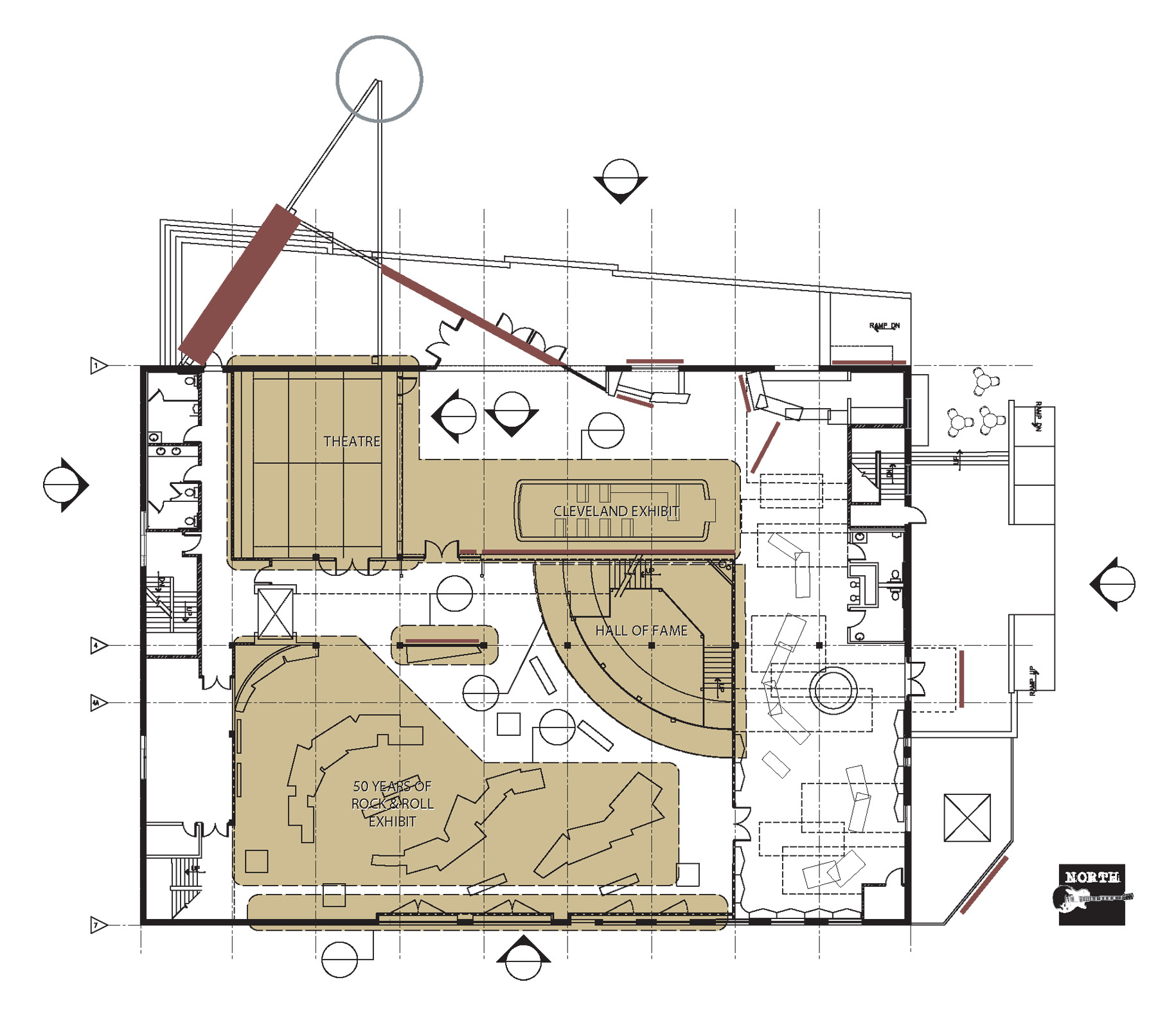
exhibit plan
exhibit plan
entrance rendering
entrance rendering
show room rendering
show room rendering
exhibit rendering
exhibit rendering
exhibit rendering
exhibit rendering
timeline layout
timeline layout
timeline model
timeline model
timeline model
timeline model
Back to Top